致力于为乡村别墅、民宿、合院、养老群落等场景提供“快速交付、低碳环保、智能舒适”的一站式解决方案
绿色 | 环保 | 健康 | 安全 | 低碳 | 舒适
联系我们的团队
您可以在这里向我们发送一般问题查询
ENG
首页 > 产品中心 > 绿色住宅 > 新中式
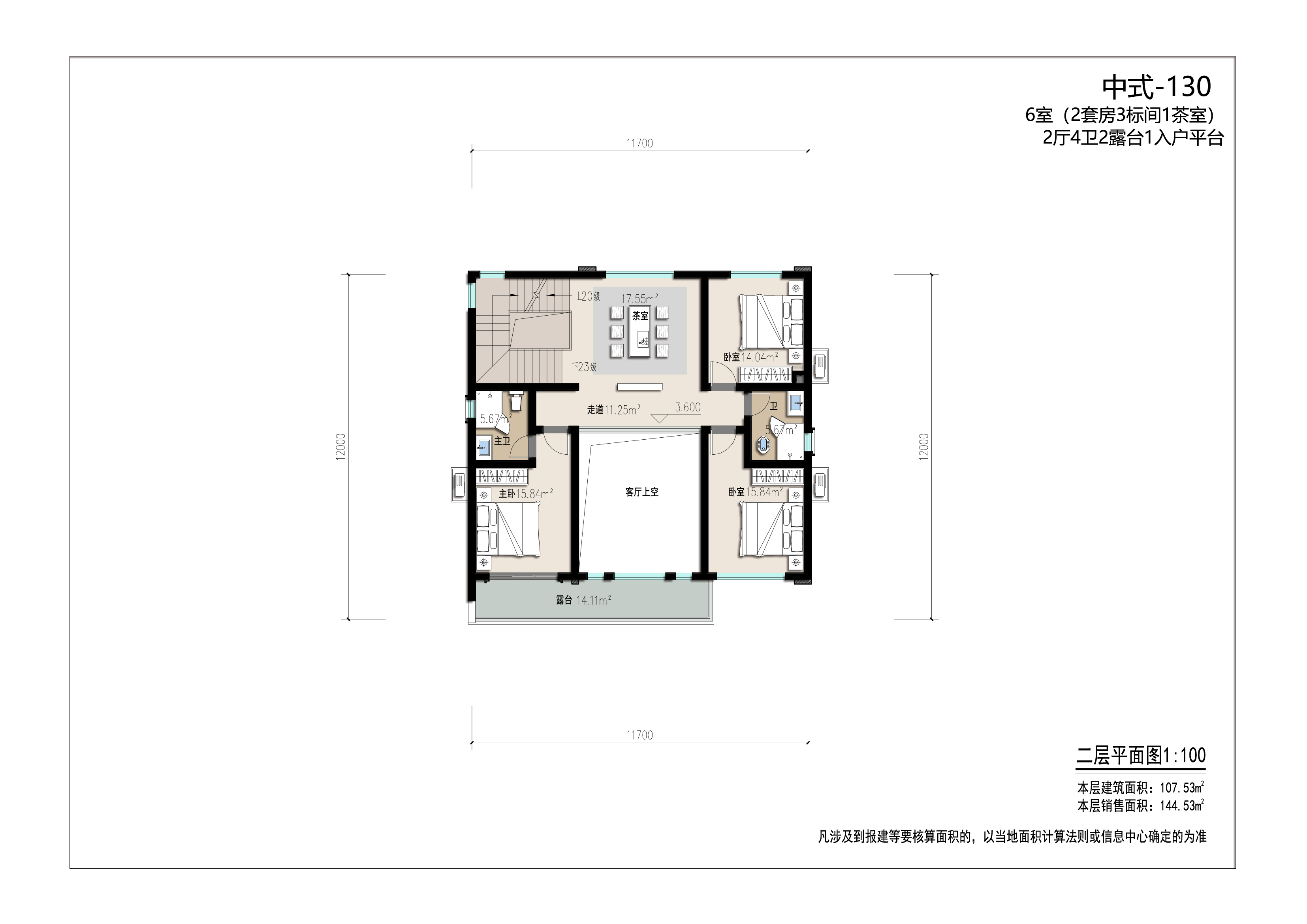
中式风情-新中式-130
中式风情-新中式-120
中式风情-新中式-110
中式风情-新中式-140
如有任何疑问 请随时与我们联系
抖音二维码
微信公众号
QQ群:
小红书二维码
400-100-1978
广州市白云区颐和高尔夫庄园
admin@dqgs-lszz.com
咨询微信客服
友情链接
top